Как сделать мопед из бензопилы или велосипед с мотором
Самодельный мопед из бензопилы вряд ли сравнится с промышленным вариантом прибора, но в качестве своеобразной взрослой игрушки он вполне сгодится. По большому счету приспособление представляет собой не мопед, а велосипед с двигателем от бензопилы. Это связано с тем, что чаще всего применяется именно старая рама от этого транспортного средства.
Мопед с применением бензопилы сможет разгоняться до 30 км/ч.На заметку! Более продвинутые умельцы берут не готовую раму от старого велосипеда, а самостоятельно изготавливают для этой цели сварную конструкцию из металлических труб или квадратного профиля. А вот основные узлы, включая подшипники, предпочитают использовать заводские.
Перед тем как поставить двигатель от бензопилы на велосипед, следует позаботиться о наличии деталей, таких как:
- рама;
- двигатель с бензобаком;
- редуктор с передаточным соотношением 18:1;
- амортизаторы;
- тормоза.
Любой двигатель на велосипед от бензопилы должен дополняться редуктором, чтобы была возможность регулировать вращение колес. Иногда вместо редуктора применяются зубчатые пары, соединенные между собой цепью от велосипеда. Если за основу брать горный вариант велосипеда, то здесь в большей степени подойдет редуктор с передаточным числом 1:15 или 1:20, дополненный вариатором. Главное преимущество горного велосипеда с мотором от бензопилы состоит в том, что в отличие от обычного устройства его получится разогнать до 30 км/ч.
Другим простым в исполнении транспортным средством считается карт из бензопилы, напоминающий упрощенную модель автомобиля, которая применяется в основном для кольцевых гонок. Прибор лишен цельного корпуса, в нем нет амортизаторов. Минимальное количество деталей позволяет облегчить конструкцию и обеспечить ему большую скорость передвижения.
Для велосипеда понадобиться не только двигатель от бензопилы, но также и редуктор.
Рама чаще всего варится самостоятельно из металлопрофиля, а в качестве донора колес используются старые тележки. В качестве привода на заднюю ось применяют велосипедную цепь, а также понадобится рулевая трапеция. Чтобы собрать корпус, потребуется использование сварочного аппарата. Некоторые считают карт, выполненный своими руками, детским автомобилем с бензиновым двигателем, но нужно учитывать, что транспортное средство способно развивать приличную скорость.
Варианты изготовления снегоуборщика из двигателей от разных бензопил
Разные бензопилы комплектуются разными между собой моторами. В связи с этим, при сборке снегоуборщика изготовителю потребуется внести в ее устройство те, или иные изменения. Рассмотрим их на примере тех бензопил, двигатели от которых чаще всего используются для изготовления самодельной техники.
Снегоуборщик из бензопилы Дружба
Чтобы собираемая самоделка получилась надежной и сбалансированной, перед ее сборкой потребуется изучить схемы. Чертежи должны подсказать изготовителю правильный порядок действий и методы монтажа узлов в общее устройство снегоочистителя.
Двигатель от бензопилы Дружба выделяется высокой мощностью, поэтому, в отличие от импортных пил, во время работы он достаточно сильно вибрирует и шумит. Чтобы сделать эксплуатацию снегоуборщика из бензопилы Дружба более удобной, во время установи мотора между рамой и двигателем потребуется установить толстый кусок резины. Он значительно снизит вибрацию на раму и на рукоятку оператора.
Чтобы снизить шум при постоянной работе самодельного снегоуборщика, встроенный в него двигатель потребуется оборудовать глушителем. Для этого нужно взять металлическую цельную трубу, которая должна быть прикреплена к мотору болтами или приварена. Внутрь металлической трубы необходимо установить резиновую прокладку, также сложенную в форме трубы.
Снегоуборщик из бензопилы Урал
Как и пилы Дружба, садовые цепные инструменты марки Урал обладают повышенным запасом крутящего момента и тяги. Поэтому, собирая снегоуборщик из бензопилы Урал, можно заранее начертить схему крупногабаритной машины с широким объемным ковшом и мощным шнековым механизмом.
Основой снегоуборщика будет служить рама, состоящая из трех, а не из двух продольных труб. Дополнительная труба нужна для более высокой устойчивости машины на участках с подъемами и уклонами. В задней части рамы нужно приварить 3 поперечные узкие стальные пластины, толщиной не менее 5 мм. Поверх труб нужно установить двигатель, и закрепить его 5–6 мощными болтами.
С колесами и шнеком мотор должен быть связан посредством цепного привода. Для его монтажа потребуются 2 крупные звездочки. Во время интенсивной работы снегоуборщика из используемой бензопилы они должны быть смазанными, иначе детали быстро нагреются и треснут.
Для работы самодельной машины потребуется мощный шнек, состоящий из вала, диаметром от 5 до 7 мм, а также 4 винтовые пластины. Они должны быть расположены на валу параллельно друг к другу, и непосредственно смотреть в центр ковша. Для сварки ковша необходимы 2 боковины и полукруг из оцинкованной стали.
После сборки снегоуборщика все его металлические элементы нужно покрасить, чтобы защитить их от коррозии.
Снегоуборщик из бензопилы Штиль
Машина из бензопилы немецкого бренда получиться малогабаритной и достаточно маневренной. Перед тем, как начать ее сборку, потребуется внимательно изучить чертежи, в которых будут указаны размеры деталей и их расположение в общем устройстве снегоочистителя.
Роль основы снегоуборщик из бензопилы будет играть крепкая металлическая рама. В ее задней части должен крепиться мотор, под которым необходимо предварительно установить и закрепить резину, толщиной 5 мм. Между двумя продольными трубами рамы нужно провести цепной привод, под которым к трубам потребуется приварить пластину оцинкованной стали.
Далее необходимо сварить заборный ковш. Для снегоуборщика из бытовой бензопилы Штиль размеры ковша не должны превышать 60×50 см в ширину и высоту соответственно. Внутрь ковша крепиться шнек, состоящий из 65-сантиметрового вала и расположенных на нем винтовых пластин.
Готовый снегоуборщик из бензопилы Штиль сможет убирать сухой и налипающий снег, а также расчищать сугробы, высотой до 50 см.
Как сделать лебедку и пилораму из бензопилы своими руками
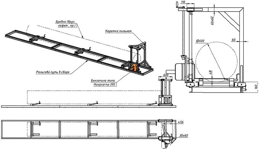
Самоделки из «Урала» часто помогают и в строительстве. Так, при возведении зданий из цельного леса приходится распускать бревна на брус. Пилорама из бензопилы «Урал» дает возможность выполнить это действие максимально быстро, аккуратно, сохраняя точность реза. Главное преимущество – отсутствие необходимости выполнять какие-либо сложные переделки. Приспособление просто требуется надежно закрепить в самодельной раме, которая может быть изготовлена из металлических уголков или профильных труб. Бревно для обработки затем уже укладывается на подготовленные направляющие.
Схема изготовления пилорамы из бензопилы своими руками.
Создавать чертежи пилорамы из бензопилы своими руками не придется, потому как в сети доступно большое количество идей, подходящих даже для человека без опыта.
Безопасность использования конструкции обеспечивается тем, что не нужно самостоятельно передвигать бревно. Для этой цели служит каретка с пилой, которая, в зависимости от толщины бревна, закрепляется на необходимой высоте. После включения рама перемещается точно, а срез остается аккуратным и получается ровным. Можно эксплуатировать устройство не только для цельного бруса, но и для распиловки доски, с целью заготовки дров.
На заметку! Нужно быть готовым к тому, что в процессе работы будет образовываться большое количество опилок, так как для распиловки используется цепь значительной толщины.
Самодельная лебедка также станет хорошим помощником при строительстве, потому как с ее помощью получится легко поднимать грузы на высоту, перемещать спиленное дерево. Кроме того, применяя лебедку, удастся вытащить застрявшую машину или вытянуть из воды на берег катер. Эффективность работы будет зависеть от передаточного числа редуктора, в некоторых моделях показатель может достигать 1,5 т.
Пилорама из бензопилы позволит легко и быстро превратить бревна в брус.
Чтобы прибором было удобно пользоваться, потребуется выполнить прочную раму, используя сварочные работы. На раме следует прочно закрепить мотор, редуктор и барабан с системой торможения. Для фиксации рамы на корпусе следует предусмотреть отверстия и проушины, через которые можно будет установить прибор на любую поверхность.
Настройка бензопилы по шагам
Здесь мы шаг за шагом покажем, как происходит регулировка карбюратора бензопилы. Как правило, при нормальной эксплуатации в полной регулировке карбюратора нет необходимости.
Иногда бывает нужно настроить винт Т для устойчивой работы на холостом ходу. Вращая винт по часовой стрелке, мы увеличиваем обороты, вращая против — уменьшаем.
Надо добиться устойчивой работы двигателя, но так, чтобы на холостом ходу не срабатывало центробежное сцепление, то есть цепь оставалась неподвижной.
Если же все-таки полная регулировка необходима, то действуем следующим образом: на выключенном двигателе закручиваем оба винта L и Н по часовой стрелке до упора. Затем отворачиваем на полтора оборота влево. Это стандартное положение.
Затем запускаем пилу и проверяем, как она реагирует на добавление газа. Если реакция вялая — откручиваем винт L еще немного, но не более чем на 1/ 8 оборота.
Винтом Н устанавливаются максимальные обороты двигателя. Они обычно указаны в инструкции. Для регулировки необходимо иметь измеритель оборотов — тахометр. Есть методы регулировки оборотов без тахометра на слух. Мы этот метод не исключаем, но и не рекомендуем. Если указанные регулировки не дают результата, ищем причину.
Как сделать ледобур из бензопилы своими руками?
Бур из бензопилы собирается в несколько этапов. К каждому из них нужно отнестись внимательно. В противном случае появится риск быстрой поломки одного из важных элементов устройства.
Как выбрать редуктор?
Вначале нужно выбрать редуктор на бензопилу для бура. При покупке элемента следует учесть такие важные факторы, как мощность двигателя бензопилы и размеры бура. Нужно помнить, что моторы большинства бензиновых инструментов обладают высокой мощностью. Если при работе мотобур из бензопилы будет вращаться на слишком высокой скорости, то с ним невозможно будет работать. При этом, если редуктор станет передавать на используемый выходной вал слишком низкое вращательное усилие, то от использования бензинового инструмента будет очень мало пользы. По этим причинам нужно сделать точные расчеты параметров редуктора.

Самостоятельное изготовление корпуса
Насадка на бензопилу для бурения льда должна быть оборудована надежным корпусом. Этот элемент устройства будет защищать все внутренние детали оборудования от механических повреждений, а также попадания внутрь конструкции пыли, мусора и влаги. Для изготовления корпуса нужно использовать металлические трубы, на которых нет следов ржавчины или других дефектов. Трубы потребуется согнуть в форме рамок.
Это делается в следующем порядке:
- Для начала от первой трубы потребуется отмерить кусок, длина которого должна быть равна периметру запланированной рамы. Оптимальным будет отрезок, длиной примерно 160 см;
- Затем на поверхности подготовленного отрезка потребуется сделать надрезы, глубина которых не должна превышать 1/3 от радиуса используемой трубы. Эти надрезы должны располагаться в местах изгибов отрезка. Чтобы труба легко сгибалась, в каждом месте ее изгиба нужно проделать по 4–6 надрезов на расстоянии 5 мм друг от друга. В случае если во время сгибания трубы не удастся получить ровный прямой угол, то нанесенные надрезы потребуется немного сточить болгаркой;
- После сгибания отрезка все соединения и углы останется заварить ручным сварочным аппаратом.

В результате должен получиться корпус с формой четырехугольной равномерной усеченной пирамиды. Внутри него потребуется надежно закрепить двигатель от бензопилы, а также редуктор и другие элементы бура.
Методы установки двигателя для бура
Результатом предыдущих действий стал предварительно снятый двигатель от бензопилы , а также надежный корпус, внутри которого расположен редуктор. Имеющиеся элементы потребуется соединить между собой. Для этого нужно продумать метод их соединения.
Если мотор в будущем будет использоваться исключительно для бурения отверстий, то бур из бензопилы для земли или льда можно сделать в виде цельной конструкции. В этом случае используемый двигатель не будет сниматься, и его крепление будет более надежным.
В случае если мотор иногда будет сниматься для его монтажа обратно на бензопилу, то его крепление потребуется сделать съемным. Этот вариант более практичен в использовании, однако крепление двигателя в этом случае будет менее надежным.

Во время планировки крепления двигателя следует предусмотреть свободный доступ к емкостям для заправки горючим и моторным маслом. Также владелец бура должен иметь доступ к клапану, который нужен для регулировки давления в цилиндре двигателя.
Лучше всего оборудовать бур для рыбалки двигателем от старой бензопилы. Этот мотор можно установить стационарно, и не снимать его на протяжении всего срока эксплуатации бура. Для крепления старого двигателя потребуется рамы. Она должна находиться в верхней части оборудования. При установке мотора на раму потребуется вывести горловину для заливки горючего и масла. В этой же части устройства нужно установить аварийный выключатель. Этот элемент очень важен в случаях, если бур будет использоваться не только для льда, но и для земли. Аварийный выключатель даст возможность отключить оборудование тогда, когда почва оказалась слишком твердой.
Чаще всего для изготовления бура используют моторы от бензопил Урал. Эти ДВС требуют минимальных доработок. Единственный минус заключается в том, что работать с этими двигателями смогут только люди среднего и высокого роста.
Самостоятельное крепление бура
Рабочая насадка самодельного бура должна быть надежно закреплена. Сделать это можно несколькими способами. Первый из них заключается в использовании трубы, на которой крепиться редуктор и используемый бур
Важное преимущество этого метода заключается в том, что при необходимости поврежденный элемент можно будет быстро заменить

В этого метода есть два недостатка. Первый из них заключается в увеличении веса оборудования, а второй – в сложностях при работе из-за вертикальной трубы.
Особенности изготовления своими руками самоделок из бензопилы «Дружба»
Из бензопилы «Дружба» изготовить своими руками можно любые самоделки, перечисленные в нашей сегодняшней статье. Вибрации у двигателя минимальны, а при необходимости увеличения мощности можно модернизировать редуктор. Однако есть в «Дружбе» значительный минус – пила давно снята с производства, а значит, с обслуживанием и запасными частями могут возникнуть сложности.
По отзывам владельцев, «Дружба» − безотказная, как автомат Калашникова
Учитывая сравнительно невысокие цены на бензопилы на российском рынке, более приемлемым будет использование современного оборудования в целях изготовления различных самоделок.
Как сделать мотор для лодки из бензопилы своими руками
Для того, чтобы самостоятельно сделать лодочный мотор, используя в качестве донора имеющуюся в наличии бензопилу, достаточно иметь базовые знания о том как устроен мотор для лодки и желание выполнить работу своими руками.
Из инструментов и материалов понадобиться минимум, который мы рассмотрим чуть ниже. Вся конструкция достаточно проста и лаконична, главное запомнить алгоритм переделки и не забыть назначение всех основных деталей конструкции.
Необходимые материалы для лодочного мотора
Для удачного воплощения идеи создания лодочного мотора из бензопилы своими руками нам понадобятся детали-доноры, которые были перечислены выше в разделе «Устройство и принцип работы приспособления». А вот инструменты, которые желательно иметь для изготовления:
- токарный станок;
- набор болтов и гаек под размер крепежных отверстий;
- металлический уголок;
- стальные болванки;
- линейка;
- штангенциркуль.
Если нет токарного станка, то не надо переживать, данный вид работ можно сделать по заказу в соответствующей мастерской у токаря.
Какую бензопилу использовать
Нет принципиальной разницы, какую бензопилу использовать для переделки в лодочный мотор. Любой, даже самый слабый двигатель бензопилы бытового уровня является силовым агрегатом, который сможет дать необходимую мощность для начала вращения гребного винта.
Из отечественных бензопил можно выделить любые модели марки «Урал», отличным выбором будут модели немецкой фирмы Штиль, например, хорошо зарекомендовавшая себя пила Stihl MS 260. Всех немцев отличает их большая мощность и надежность конструкции.
Гораздо важнее не наличие бензопилы с самым мощным двигателем, а умение правильно читать чертежи и схемы, а также обладать начальными навыками сварки.
Пошаговая инструкция изготовления
Основная мысль изготовления лодочного мотора из бензопилы заключается в замене пильной гарнитуры бензопилы на винтовое приспособление для гребли. Мы будем только заменять механизмы, не внося изменений в принципиальную схему мотора пилы.
Для правильного соединения двигателя с винтовой насадкой и передачи крутящего момента нужно выточить новую муфту и заменить пружину на более слабую. Мы уменьшили параметр момента сцепления и подогнали все размеры конструкции.
Затем с помощью швеллера скрепляем двигатель и вал, оставляя необходимое расстояние между основной рамой и муфтой. Редуктор от УШМ привариваем с другого конца вала. Поворотный механизм изготавливается из толстостенной трубы с несколько большим диаметром, чем диаметр основного вала.
Когда гребной винт и вал редуктора соединены воедино, нужно залить трансмиссионное масло. Используя немного сантехнического герметика, закрываем крышку. Данная конструкция не предполагает использования ручки газа, но ее также можно изготовить самостоятельно из велосипедной ручки переключения скоростей. Для более комфортного движения по воде можно установить глушитель.
Во многих частных хозяйствах имеются бензиновые пилы, а также легкие лодки. Если по какой-то причине штатный лодочный мотор вышел из строя или он еще не приобретен, можно сделать достойную замену из имеющейся бензопилы. Нехитрый инструмент, знание технической части и самодельный лодочный мотор готов.
К плюсам можно отнести дешевизну конструкции, возможность использования любой бензопилы и высокую ремонтопригодность. Очень удобно, что конструкция получается модульной и не влечет за собой изменения в штатную конструкцию бензопилы. При необходимости с лодочного мотора снимается двигатель, на него возвращается направляющая шина с цепью, и бензопила опять может выполнять свою работу.
Лебедка
Лебедка-самоделка будет отличным подспорьем в строительстве и подъеме грузов на высоту, перетаскивании спиленного дерева, спасении засевшей в луже машины, вытаскивании из воды катера.Тяга такой самодельной лебедки зависит от мощности двигателя и от передаточного числа редуктора, и может достигать полутора тонн.Для конкретных применений агрегат снабжают дополнительными комплектующими: блоками, полиспастами, гаками, стропальными ремнями и анкерами для прикрепления к земле или к дереву.Для изготовления лебедки из бензопилы своими руками потребуется сварить прочную раму, на которой следует разместить двигатель, редуктор и барабан со стопором. На раме предусматривают отверстия и проушины для различных способов крепления устройства к земле, деревянному или бетонному фундаменту или к стволу дерева. Барабан можно взять от старой лебедки, а можно изготовить самостоятельно по чертежам.

Бензолебедка
Следует соблюдать правила безопасности при проведении подъемно-такелажных работ:
- Тросы, гаки и строповочные принадлежности должны быть прочными и периодически испытываться на разрыв десятикратным усилием.
- Стопор должен надежно фиксировать барабан и исключать самопроизвольное разматывание троса под нагрузкой.
- При подъеме тяжестей лебедка должна быть закреплена на постоянном или временном фундаменте, вес которого должен в пятикратно превосходить максимальный вес поднимаемого груза.
- Категорически запрещается стоять под грузом и в зоне его возможного разлета при падении, а также сбоку от натянутого троса при горизонтальном перемещении предметов.
Инструкции по изготовлению своими руками
Пилорама из бензопилы Урал
Перед началом работ, выбирается или создается чертеж, или хотя бы эскиз будущего изделия. Желательно, чтобы в нем были указаны размеры хотя бы основных деталей. Это значительно облегчит и ускорит работу. Можно будет сразу нарезать заготовки по длине, а затем приступить к сборке.
Общий вид и возможности будущего агрегата можно выбрать и увидеть как на практике, на примере ленточных или бензопильных пилорам, так и в сети на многочисленных видео на эту тему. При выборе вариантов, по типу которых планируется сделать свой вариант, лучше выбрать наиболее простые, с минимумом усложнений и деталей.
На этом видео показано простейшее устройство такого типа. Мы видим протяжной тросик, который оператор накручивает с помощью рукояти, обеспечивая протяжку бензопилы вдоль бревна. Но одновременно видно, что оператор не только подкручивает тросик, но и просто передвигает агрегат рукой. Очевидно, что пилорама такого типа может быть сделана как с таким протяжным устройством, так и в еще более простом варианте, без него. Тогда бензопилу передвигают руками.
Главные требования к любой конструкции и материалу:
- Достаточная прочность.
- Отсутствие больших люфтов при движении рабочего узла по вертикальным и горизонтальным направляющим.
При этом следует помнить, что чрезмерная прочность приводит к утяжелению и удорожанию всей конструкции, а чересчур плотная посадка движущихся частей в направляющих устраняет люфты, но может привести к застреванию (заклиниванию) во время работы.
Имея опыт, можно начинать работы без чертежа, или с простым эскизом – наброском. Работы без чертежа проводятся вслепую, и часто всплывают непредвиденные ошибки. К тому же все размеры придется запоминать, или записывать на бумаге. А запись размеров с указанием расположения деталей автоматически приводит к созданию хотя бы простейшего эскиза.
После выбора или создания чертежа (эскиза) проводится комплектация заготовок. Набирается комплект необходимого проката, крепежа и других нужных деталей.
Далее металлопрокат нарезается по длине, заготовки собирают до готовности всей конструкции.
Более подробно о том, как сделать пилораму из бензопилы Урал рекомендуем посмотреть в видео ниже. Автор подробно рассказывает про все шаги изготовления, а также приводит размеры. Рекомендуем посмотреть, полезное видео.
Мини пилорама из бензопилы Штиль
Такие агрегаты собираются точно по такому же порядку и принципу, как и с использованием бензопил других марок. Но есть несколько отличий.
Размеры и форма современной бензопилы «Штиль» совершенно другие, чем у советских бензопил. Поэтому при креплении самой бензопилы к раме используется крепеж другой формы и размеров.
При проектировании учитывается мощность агрегата. Например, модель «Штиль МС 880» мощностью 6,4 кВт (8,7 л.с.) с длиной шины 70 или 90 см может пилить более толстые бревна большой длины. Следовательно, чтобы использовать агрегат в полной мере, проектируется станина большей ширины и длины.
О том, как сделать пилораму типа Логосоль на базе профессиональной бензопилы «Штиль МС 660» показано в видео ниже. Этапы изготовления не описаны, но как она устроена и принцип работы основных узлов понятен.
Переносная пилорама из бензопилы Дружба
При изготовлении пилорамы с использованием этого агрегата также учитываются особенности модели. Например, менее мощная «Дружба 2» подходит для обрезки тонкомера (подтоварника) и не требует широкой и мощной станины. «Дружба 4» способна распилить более крупные бревна, и это тоже учитывается при проектировании.
Если станина готовится под любую бензопилу, желательно выбрать средний по длине и ширине размер. Место крепления силового агрегата должно быть спроектировано таким образом, чтобы без проблем можно было закрепить бензопилу любых габаритов и мощности.
Также рекомендуем почитать интересную статью о том, что еще полезного можно сделать из бензопилы Дружба.
Рекомендуем посмотреть интересное видео о том, какую пилораму можно сделать на базе пилы «Дружба 4». Автор рассказывает о том как устроено его приспособление, принцип работы, а также про нюансы изготовления своими руками.
Из чего можно сделать лодочный мотор?
Лодочный мотор можно изготовить из многих механизмов, которые пылятся в сарае или в гараже и по назначению не применяются.
Часто бывает так, что техника выходит из строя, а чтобы её починить требуется потратить более половины стоимости нового устройства. Намного проще в этом случае приобрести новый прибор, а старый отложить и использовать его в качестве источника запчастей и различных болтиков-гаечек. Именно из таких устройств и можно изготовить лодочный мотор.
Если в наличии таких приборов нет, то можно недорого приобрести такой механизм на вторичном рынке. Главное, чтобы в таких устройствах был исправен двигатель.
Лодочный мотор из триммера
Минимально изменив конструкцию триммера можно устроить отличный тяговый агрегат для лодки любой конструкции. Двигатель и трансмиссия в таком приборе уже есть, достаточно изготовить крепление для лодки, а вместо бобины с леской или диска установить гребной винт.
Прежде чем изготавливать лодочный мотор из триммера, следует понимать, что мощность таких устройств очень мала, и передвигаться против сильного течения вряд ли удастся.
Триммер в качестве лодочного мотора идеально подойдёт при использовании на озере или пруду.
К недостаткам использования данного прибора следует отнести высокий уровень шума. Кроме того, при небольшой скорости движения придётся дышать абсолютно всеми продуктами «жизнедеятельности» этой системы.
Лодочный мотор из шуруповёрта
Отличными показателями в плане производства шума и экологичности обладают лодочные моторы на электрической тяге. Можно изготовить мотор для лодки из шуруповёрта, но мощность устройства не должна быть менее 300 Вт. Для передачи крутящего момента к винту, который расположен под водой, можно использовать гибкий вал от триммера.
В качестве гребного винта используется небольшой алюминиевый винт от автомобильного вентилятора, а для обеспечения продолжительного времени работы такого устройства применяются автомобильные аккумуляторы ёмкостью 60 А/ч.
Недостатками таких конструкций является необходимость возить с собой полностью заряженный автомобильный аккумулятор. Масса такой детали составляет более 20 кг. К недостаткам можно отнести ограниченность хода такого мотора, после разрядки аккумулятора возникнет необходимость снова вручную приводить лодку в движение.
Лодочный мотор из мотоблока
Самым мощным из самодельных лодочных моторов считается устройство изготовленное из мотоблока. Техника для обработки приусадебного участка оснащается выносливыми и долговечными четырёхтактными двигателями внутреннего сгорания, которые, будучи установлены на плавсредство,
позволят ему развивать приличную скорость как по течению, так и против него. Такие двигатели имеют значительную массу и, обычно, не используются на лодках ПВХ.
Наиболее простой способ установки лодочного мотора такой конструкции заключается в минимальных переделках основной конструкции. Достаточно прикрепить к корпусу лодки мотоблок, и установить вместо фрез алюминиевые лопасти. Лопасти должны быть расположены в одной плоскости с валом, который в данном случае располагается перпендикулярно движению плавсредства Лопасти имеют вид прямоугольных пластин, которые нижней половиной должны быть опущены в воду, а верхняя часть свободно перемещаться по воздуху. Такое устройство гребного колеса, позволит перемещаться с высокой скоростью даже в местах, где глубина не превышает полуметра. Отлично справляется лодочный двигатель изготовленный из мотоблока с быстрым течением.
Другие варианты
Изготовить самодельный двигатель можно не только используя триммеры и шуруповёрты за основу. Если есть желание сконструировать лодочный мотор самостоятельно и есть значительный запас времени и средств, то в качестве силового агрегата можно использовать любое техническое устройство оснащённое двигателем внутреннего сгорания или приводимое в движение с помощью электродвигателя.
Многие мастера ставят на лодку двигатели от мотоциклов. В этом случае удаётся регулировать обороты гребного винта с помощью переключения коробки передач. Мощные 12-вольтовые двигатели, которые используются в различных механизмах, могут успешно применяться в качестве лодочных двигателей.
























































